- Maître d’ouvrage :PRIVE
- Mission ALR ARCHITECTE : Conception générale, consultation des entreprises
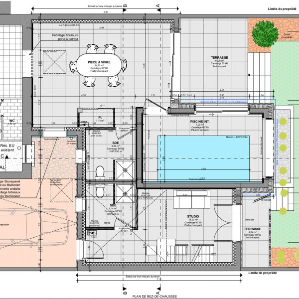
- Lieu : Saint Pierre des Corps, 37
- Coût des travaux : 187 000.00 TTC – hors honoraires
- Avancement 2024 : Chantier 2021
- Surface : 76m²
Descriptif & spécificité
Extension d’une maison des années 1960 avec création d’une pièce à vivre, d’une salle de bains et d’un atelier et d’une piscine intérieure.
De part sa situation dans le projet, la piscine intérieure est totalement intégrée à l’habitation et au jardin. Le jeu des volumes permet d’intimiser l’extension par rapport à l’immeuble en R+3 construit au Sud.














