- Maître d’ouvrage : PRIVÉ
- Mission ALR ARCHITECTE : conception / permis de construire / conception générale
- Lieu : Antony, 92002
- Coût des travaux : NC
- Avancement 2024 : Permis accordé en 2023
- Surface : créé – 161m²
Descriptif & spécificité
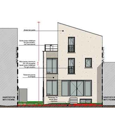
Le parti architectural de ce projet est donc d’exploiter au maximum le droit à construire, cette approche implique de travailler avec une architecture contemporaine permettant de modeler plus facilement les volumes notamment en travaillant avec des couvertures à faible pente et une toiture terrasse. Le projet se compose donc d’un volume unitaire qui s’étend en R+1 + combles avec un étage en sous sol. Ce jeux de volume est accentué par le traitement des façades qui permet d’atténuer l’aspect monolithique du projet. Les façades sont traitées en maçonnerie avec un enduit, le volume en toiture terrasse étant marqué par un parement (briques ou pierre) qui vient le souligner et mettre en valeur les ouvertures du rez-de-chaussée.
















