- Maître d’ouvrage : NC
- Mission ALR ARCHITECTE : Conception générale, déclaration de travaux
- Lieu : Saint-Pierre des Corps, 37
- Coût des travaux : NC
- Avancement 2024 : Projet réalisé en 2021
- Surface : créée : 1924m²
Descriptif & spécificité
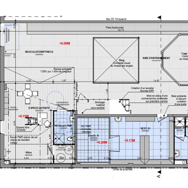
Transformation partielle d’un bâtiment d’activité en salle d’entrainement pour la pratique de sports de combats.
Ce projet consiste en l’aménagement dans un bâtiment industrielle d’une salle d’entrainement pour la pratique de sports de combats.
Une attention toute particulière a été porté sur l’optimisation des espaces, la création du balcon permettra de mettre à disposition des machines d’entrainements supplémentaire. Mais également cette vue surélevée sur les rings et cages de combats !













